新型等离子切管机技术的应用
2024-1-18 来源: 滕州市三合机械股份有限公司 作者: 张成龙 徐宝卫
一、概述
随着现代机械加工业地发展,对切割的质量、精度要求的不断提高,对提高生产效率、降低生产成本、具有高智能化的自动切割功能的要求也在提升。数控切割机的发展必须要适应现代机械加工业发展的要求。
相贯线切割机的发展。从现在几种通用数控切割机应用情况来看,火焰相贯线切割机功能及性能已比较完善,其材料切割的局限性(只能切割碳钢管),切割速度慢,生产效 率低,其适用范围逐渐在缩小,市场不可能有大的增加。
等离子相贯线切割机具有切割范围广(可切割所有金属材料),切割速度快,工作效率高等特点,未来的发展方向在于等离子电源技术的提高、数控系统与等离子切割配合问题,如电源功率的提升可切割更厚的板材 ; 精细等离子技术的完善和提高可提高切割的速度、切面质量和切割
精度 ; 数控系统的完善和提高以适应等离子切割,可有效提高工作效 率和切割质量。
目前,我国机械工业钢材使用量已达到 3 亿吨以上,板材、管材的切割量非常大 ; 随着现代机械工业的发展,对切割加工的工作效率和切割质量的要求也同时提高,进一步提高生产效率、降低生产成本、制作高智能化的自动切割设备的要求也在提升。
基于这种市场需求,并通过广泛的市场调研,我司决定开发新型等离子切管机。此种切割机具有切割范围广,切割速度快,工作效率高等特点,未来的发展方向在于等离子电源技术的提高、数控编程软件及系统与等离子切割配合问题 ; 精细等离子技术的完善和提高可提高切割的速度、切
面质量和切割精度 ; 数控软件及系统的完善和提高以适应等离子切割,这些相关配套设施的发展会有效提高切割的工作效率和切割质量。
根据国外国内市场上同类型产品具备的这些通用特点,公司成立了课题开发小组,小组技术人员借助公司已经开发的系列的 PC 等离子板类切割机的技术,以及制造过程中总结的钣金类制作的生产经验,从目前使用的设备中存在的问题
和产品质量入手进行具体情况分析,结合目前国内国际市场上存在的等离子切管类相似产品的研究,形成了一个可调整、易实现的、符合我们企业制造特点的产品设计方案。
二、设备介绍
1.设计要求
(1)总体设计案
钢管由主轴带动旋转,同时割炬枪只需进行轴向移动即可实现切割要求,所以要实现两轴联动,并且要求能进行人机对话,编程及操作方便,诊断功能及纠错能力强,具有显示和通信功能,缩短非生产准备时间,提高生产率。标配为等离子切割方式,选配弧压手动调高实现等离子切割。
(2)适用材料
①能在主管上切割多个不同方向、不同直径的圆柱相贯线孔,满足支管轴线与主管轴线偏心和非偏心的垂直相交的条件。
②能在支管端部切割圆柱相贯线端头,满足支管轴线与主管轴线偏心和非偏心的垂 直相交、倾斜相交的条件。
③能在圆管端部切割斜截端面。
④能在圆管上切割焊接弯头,“虾米节” 两端斜截断面。
⑤能切割与环形主管相交的支管相贯线端头。
⑥能切割变角度坡口面。
⑦能在圆管上切割方孔、腰形孔。
⑧ ) 能进行钢管截断。
2.主要结构
新型等离子切管机主要由主轴箱升降部分、割头部分、支架部分、电气箱部分组成。机械系统组成框图如图 1 所示。

机械系统的主要作用是支持割炬部分、主轴部分完成 X-Y 平面的联动,并且割炬可以在Z 平面上独立控制升降,以调节割嘴和钢板间的距离。
3.各组成结构设计
(1)主轴箱升降部分
此部分结构主要是完成 X 向工件的旋转。为实现工件的旋转,选用主轴和气动卡盘 来实现。利用气动卡盘手动夹紧管件,气动卡盘安装在主轴一端,伺服电机通过齿轮带动主轴运动,主轴
旋转带动卡盘旋转运动,实现割件切割时的旋转运动(如图 2 所示)。

为了完成装夹工件切割位置的调整,采用两个锥齿轮相啮合,带动丝杠与丝母相配合,转动手轮,手动调整主轴箱的高度,来确定管件切割位置。这种结构不同于以往 的相贯线切割机,以往的相贯线切割机大部分是通过调整支撑结构来调整管件的切割位 置。这种调节方式,设置简单、易于操作,调节精度较高(如图 3 所示)。

(2)割炬部分设计
该部分实现割炬 Y 轴方向的纵向移动。如图 4 所示,为实现运动的可靠性与稳定性,保证Y 向运行精度,采用斜齿轮、齿条、线性滑轨相配合使用的结构,即左右两条线性滑轨和齿条均安装在纵向支撑导轨上,伺服电机、割炬支撑架
通过电机座固定在线性导轨的线性滑块上,伺服电机通过斜齿轮与齿条相啮合沿 Y 轴方向纵向移动,即实现割炬在 Y 轴方向的纵向移动。Z 轴手动控制升降以调节割嘴和工件间的距离。为了保证割炬升降的精度与准确性采用丝杠与丝母相配合的结构,手轮旋转丝杠与母相配合,带动割炬升降,来调整割嘴与工件间的距离。

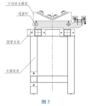
(3)支撑部分结构
支撑结构主要包括支撑底座、连接杆、圆管支架、万向球支撑座等组成。支撑底座是切割机的关键部件 , 它的作用是支撑工件实现旋转运动,并安装纵向导轨实现割炬横向运动。设计中要充分考虑支撑底座强度、刚度和工艺性 , 要对其强度及刚度进行校核。支撑底座采用矩管焊接,焊接牢固、稳定,支撑强度大,不易变形。连接杆与圆管支架固定在支撑底座上端,万向球支撑座放在连接杆上,且在连接杆可轴向滑动。每个万向球支撑座上,固定 8 个万向球,左右对称排布,用于支撑管件。此结构,能使在其上运行的工作板、物料箱等物体能非常灵活的滑移,从而大大减小工人的劳动强度,安装方便(只需将万向球固定在平台上即可),传动灵活,性能可靠,维护简单(如图 5 所示)。

(4)控制系统的可靠准确性
机床控制元件均选用世界知名品牌 LG 的PLC 控制,其他控制元件选用高品牌具有 CE、UL 或 CSA 认证的产品,其高质量和高稳定性保证了机器运转的稳定性和可靠性。
4.技术参数性能指标
根据市场调研,结合用户参考建议,研发的新型等离子切管机技术参数和性能指标为 : 最大的有效切割直径 300mm; 最小的有效切割直径50 mm; 主机导轨 6m ,相贯线导轨 6m; 数控等离子切割壁厚 1~12mm; 整机运行速度 5.08m/min; 机器承重 150kg/m; 机床体积(长 × 宽 ×高):7000mm×930mm×1630mm。
三、主要创新点
(1)Y 轴。斜齿轮与齿条相啮合,线性滑轨,带动机头沿着钢管轴向移动。此结构,运动平稳,运行精度高。
(2)采用两个锥齿轮相啮合,带动丝杠与丝母相配合,手动调整主轴箱的高度,来确定管件切割位置。这种结构不同于以往的相贯线切割机,以往的相贯线切割机大部分是通过调整支撑结构来调整管件的切割位置。这种调节方式,设置简单、易于操作,调节精度较高。
(3)支撑结构。支撑结构主要包括支撑底座、连接杆、圆管支架、万向球支撑座等组成。支撑底座采用矩管焊接,焊接牢固、稳定,支撑强度大,不易变形。连接杆与圆管支 架固定在支撑底座上端,万向球支撑座放在连接杆上,且在连接杆可轴向滑动。每个万向 球支撑座上,固定 8个万向球,左右对称排布,用于支撑管件,此结构,能使在其上运行的工作板、物料箱等物体能非常灵活的滑移,从而大大减小工人的劳动强度,安装方便(只需将万向球固定在平台上即可), 传动灵活 , 性能可靠 , 维护简单。
四、市场前景
新型等离子切管机功能可靠、软件易学易懂,机器操作方便,装卸管材比较简单,切口下料效率较高,管件相连接的切割面的质量以及弧线能较好的吻合,是管类焊接打破口的高效生产设备。产品经用户使用,效果良好,满足了客户的使用要求,特别是简单易用的编程操作系统更是得到用户的青睐。所以我们开发的等离子切管机是成功的,很具有推广价值。
投稿箱:
如果您有机床行业、企业相关新闻稿件发表,或进行资讯合作,欢迎联系本网编辑部, 邮箱:skjcsc@vip.sina.com
如果您有机床行业、企业相关新闻稿件发表,或进行资讯合作,欢迎联系本网编辑部, 邮箱:skjcsc@vip.sina.com




